图知网
搜索
首页
热门推荐
图片分类
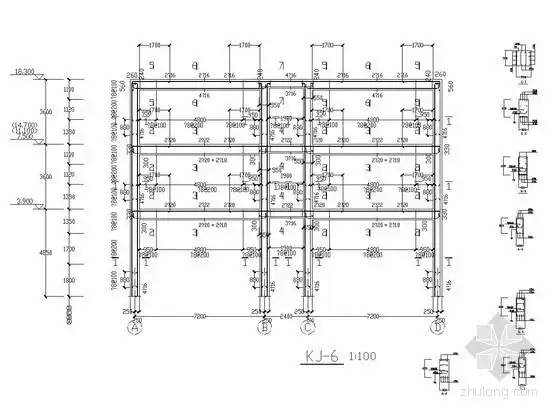
五层钢筋砼全现浇框架结构设计
下载原图
相关图片
[学士]五层框架结构教学楼毕业设计(建筑图 结构图 详细计算书)
框架配筋图.dwg
框架梁柱配筋图
非框架梁纵向配筋构造节点大样图免费下载 - 混凝土结构 - 土木工程网
某楼层框架梁正投影配筋节点构造详图-混凝土节点详图-筑龙结构设计
钢筋砼框架结构的构造
为你推荐
倪妮出发米兰时装周#倪妮启程前往米兰时装周,机场路透图 视频德滗
男士三七纹理背头
全家福怎么画5人 全家福怎么画5人简笔画
华为【p10 plus】全网通 蓝色 6g/64g 国行 8成新
德克士炸鸡桶腿翅一桶
中国黄金 1克拉结婚求婚女戒 白金奢华钻石戒指 经典四爪钻石戒
盆栽竹子的种类(盆栽竹子的种类叶子像玉米叶)
祝福祖国守护平安哈尔滨市公安文联书法美术协会作品网展