图知网
搜索
首页
热门推荐
图片分类
乡间的小路_歌谱简谱_哆来咪123曲谱网
下载原图
相关图片
乡间的小路_乡间的小路简谱_乡间的小路吉他谱_钢琴谱-查字典简谱网
乡间的小路
乡间的小路(少儿歌曲——台湾校园歌曲)_简谱_搜谱网
简谱歌曲《乡间的小路》,歌谱,歌词逐句领唱,简单易学_哔哩哔哩_bilib
乡间的小路 c大调 初学简易版 钢琴双手简谱 钢琴谱_文档下载
乡间的小路简谱_乡间的小路简谱钢琴_简谱大全_中国曲谱网
为你推荐
空调ac不开,出风口是烫的,是什么原因呢?
《射雕英雄传之铁血丹心(83版)》黄日华,翁美玲《射雕英雄传(94版)》
119消防月:预防为主,生命至上. (消防车图片合集)
冬虫夏草 - 香烟品鉴 - 烟悦网论坛
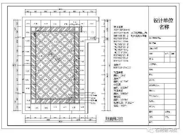
想学石材cad?看完这篇可能就会了!
十黄格书写"王"和"主"
演员请就位第二期分组情况
粒粒分明,好吃到舔盘的腊肠蛋炒饭,分分钟吃完