图知网
搜索
首页
热门推荐
图片分类
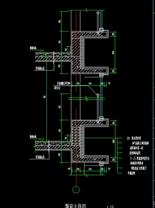
某飘窗节点构造详图
下载原图
相关图片
飘窗怎么画
飘窗结构疑问,请大师帮忙下
飘窗节点怎么画
飘窗进深为飘窗外侧至所附外墙外侧.
飘窗施工图下载
飘窗
为你推荐
郑恺说幼儿园是个小社会##一路长大
《非缘勿扰》苏有朋和秦岚互怼式爱情!
抖音最火说说句子docx9页
中学生寒假通知书
复古文艺女生头像图片 - tt98图片网
乔西-查尔斯 (josh charles)饰演威尔-加德纳(will gardner) 乔西
和平精英电音精灵套装售价介绍
童话城堡简笔画 一年级童话城堡简笔画