图知网
搜索
首页
热门推荐
图片分类
免费获取pdf格式的文章,国家和地方规范,未来还有停车位尺寸
下载原图
相关图片
建筑师们,请不要再设计这种停车位了!_尺寸_审核_问题
结合国家规范对停车位的尺寸要求,提出适宜的小型汽
车库车位标准尺寸是多少?地下停车位尺寸最低是多少?
浅析地下车库优化要点 轻松减少无效成本|车位|停车位|层高_网易订阅
4中垂直式后退停车的小型车位尺寸: 2400mmx5100mm 或 2400mmx5300mm
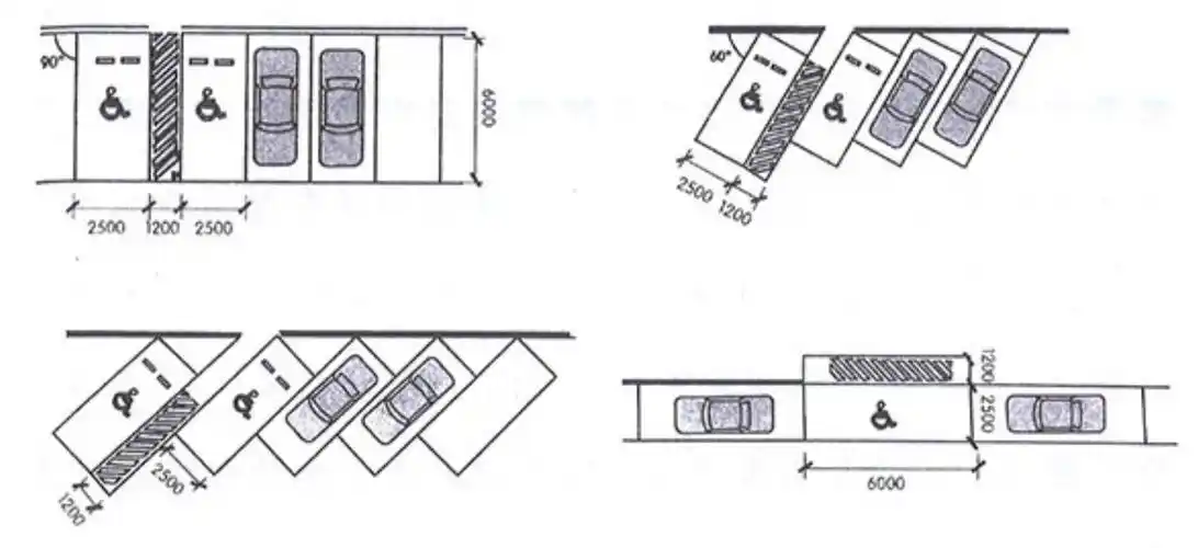
广州市停车场,你们设无障碍停车位了吗?
为你推荐
烘焙面包制作方法
蓝色精灵黄明昊
活动作品倚天屠龙记2001吴启华黎姿粤语赵敏e15cut
美国对冲基金 great hill capital 董事长托马斯·海耶斯表示,一家独
动动手指来画画,80种指印画,掌印画让孩子爱到停不下来!
王琪出道17年春晚独唱4分钟可可托海的牧羊人背后的故事
制作一个"给你点赞"的微信表情包的具体操作步骤
6种腮红画法,圆形可爱,三角形有气质,最后两种拍照画超好看!