图知网
搜索
首页
热门推荐
图片分类
通过对古代工艺美术的研究,可以学到美的法则和装饰原理的巧妙应用
下载原图
相关图片
中式唯美古代蓝色青花瓷图案花纹免抠元素
高端古代青花瓷图案花纹免抠元素
古代纹饰图片
古代花纹装饰图案
古代圆形器皿吉祥花卉图案
关键词:印花矢量图免费下载 服装图案 古典花纹 免费下载 印花矢量图
为你推荐
张学友演唱会将补偿住宿及车票损失-大象网
minecraft #壁纸 #4k - 抖音
漏电保护器原理图
美国阿拉斯加山脉景观1600x1200分辨率查看
嘉兴 . 南湖 . 湖心岛
金色边框png素材透明免抠图片-边框纹理
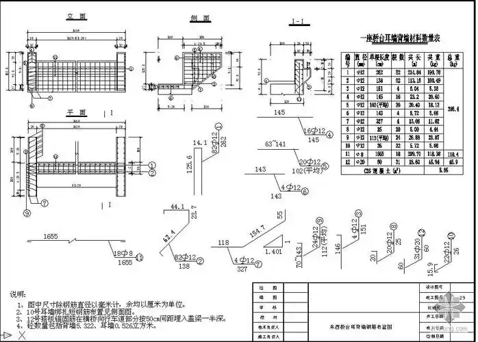
[施工图]某桥梁及附属道路工程竣工图
上海海昌海洋世界