图知网
搜索
首页
热门推荐
图片分类
极品库存捷达 2012年 实表2万多公里 收藏大哥来 非 - 抖音
下载原图
相关图片
12年捷达
12年捷达二手多少钱(1)
大众 捷达 2012款 1.6l 典藏版图片
12年大众捷达轿车 [已售]
大众 捷达 2012款 1.6l 纪念版图片
[商家服务] 12年捷达转让
为你推荐
铁海棠盆栽花卉绿植物四季开花虎刺梅水培养殖观花净化空气绿植
饭圈设计 | blackpink jisoo 金智秀q版立牌_jisoo_blackpink_金智秀
周雨彤# #向全世界安利周雨彤# 周雨彤手机壁纸|修图18p 6767
火影忍者六道仙人禅杖大筒木羽衣仙人六道斑锡杖武器cosplay道具【5天
spike户外高压电击器防身电警棍电棒远射手电电警棍充电筒电器防狼
原创和平精英老玩家一个操作诠释氪金的快乐原来买皮肤就为这
lol英雄联盟 放逐之刃 瑞雯 riven 玉剑传说 至臻 手机壁纸
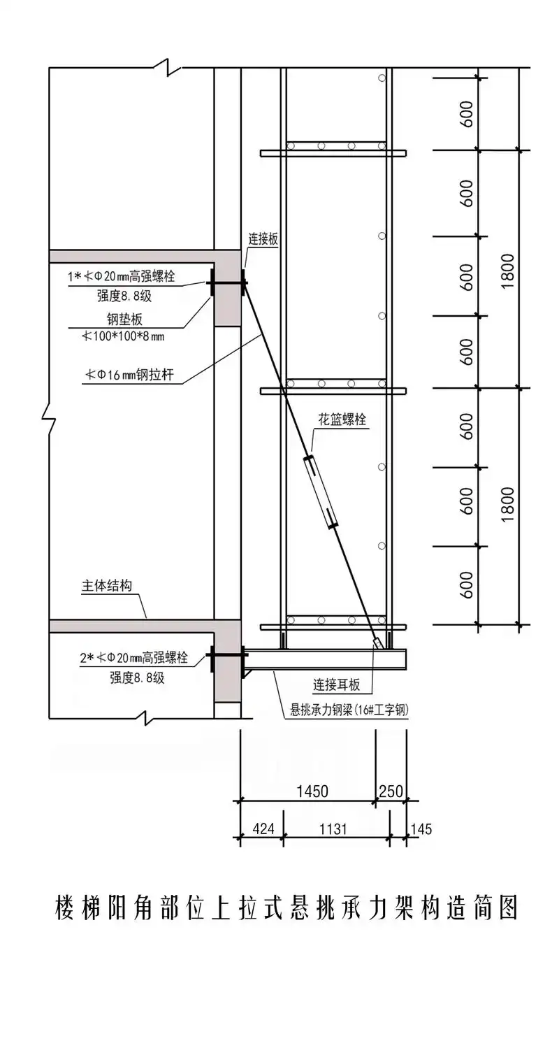
悬挑脚手架专项施工方案