图知网
搜索
首页
热门推荐
图片分类
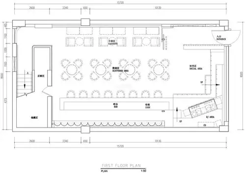
平面布置图interior design plan 以"大麦"概念转换的中央吧台区,并
下载原图
相关图片
cos.mos 29酒吧之一层平面图
deep 酒吧空间设计方案
酒吧,
平面布置图
酒吧设计项目
酒吧怎么做设计图
为你推荐
mikimoto御本木樱花珍珠耳钉
七夕海报一见钟情
娱乐圈公认的大眼睛女明星,这5位女明星的眼睛
【匠意】修复一把维京风小斧头
那就这样吧再爱就不礼貌了表情包图片动图图片1
卡通粉色围裙
仁聚益3d科技感电路板网吧墙纸it办公电脑公司背景墙装饰电竞馆壁纸
喵果森森原创仙气仙女裙预售渐变色全款仲夏梦境