图知网
搜索
首页
热门推荐
图片分类
淮安铝格栅|天花集成吊顶隔断木纹铝格栅|大广集团(推荐商家)
下载原图
相关图片
一种拱形格栅钢架焊接加工用定位胎架的制作方法
一种拉索式钢格栅拱架的制作方法
s(x)-ivb衬砌格栅拱架设计图
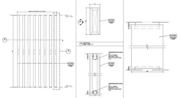
铝合金格栅竖剖节点详图
「工艺」格栅设计看这一篇就够了!格栅造型的检修,收口以及暗门
格栅拱架八字筋生产线
为你推荐
【皮套写真】令迦奥特曼
美国航空母舰的舰长为什么军衔仅仅只是上尉?
每天早晚打坐10分钟,养身延寿,开智增慧
完全故事 《三位一体2》继承了前作精美的游戏画面和精巧的关卡设计
林秋楠《龙拳小子》
四海云游白城旅游攻略必去6个景点
chicken bouillon
小丸子和小玉06|闺蜜头像