图知网
搜索
首页
热门推荐
图片分类
深圳市金汇丰建材有限公司
下载原图
相关图片
(模型示意)一般的钢构楼梯都可以用上面的做法,即通过在钢结构楼梯板
钢楼梯
[分享]钢楼梯做法详图资料免费下载
梯子家用折叠3米4米钢管工程梯装修梯加厚人字梯移动楼梯双侧铁梯
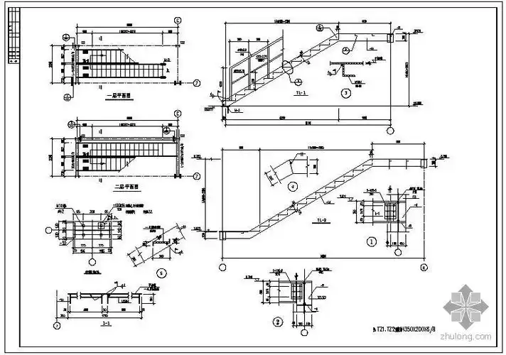
钢楼梯节点构造详图
【钢梯大样图】简易钢楼梯做法详图
为你推荐
初音未来未来有你2019特典路透q版插画可可爱爱快来舔屏
闺蜜头像动漫古风
面馆装修设计效果图餐厅餐饮餐馆汤粉面快餐牛杂沙拉烧烤店铺设计
小和尚形象图
废土角色草图合集
640_864竖版 竖屏
high玩暑期!码住这份华清宫夏日凉爽攻略
手绘卡通棕色鸭子