图知网
搜索
首页
热门推荐
图片分类
当我们蹲下起身的时候,这个肌腱会收缩拉伸,在股骨大转子上来回滑动
下载原图
相关图片
腰腿软组织疼痛常见压痛点 - 好大夫在线
止点:股骨小转子.
起点在腰椎或者髂窝,止点在股骨小转子 下肢固定时,让脊柱和髂骨前屈
穿的对让你美炸天!
别小看骨盆前倾详解骨盆前倾造成的生物力学改变
【服务能力提升】高唐县中医院骨伤科微创技术惠民生_股骨_转子_隆间
为你推荐
如何画花朵简笔画图片
贵州中药材三角枫常春藤追风藤上树蜈蚣三角风500g包邮现采现发
泼在张居正身上的一盆脏水:他的一顶大轿三十二人抬,未免太扯了_明朝
12《洛可可时期的cosplay》洛可可的创始人蓬巴杜夫人, - 抖音
今世有缘
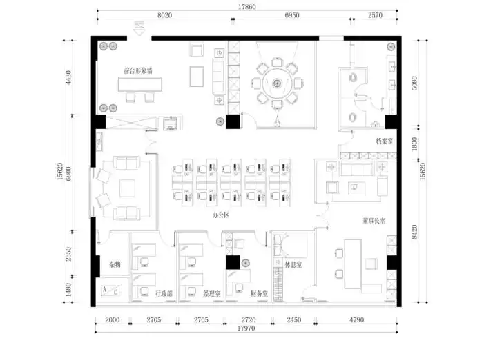
600平长方形办公室平面布局效果图 - 齐装网装修效果图
埃及胡夫金字塔欣赏4500年前的建筑
街道速写