图知网
搜索
首页
热门推荐
图片分类
用例图
下载原图
相关图片
自动售货机系统用例图ppt
延伸用况
用例图
系统关键用例图
用例图 消费者,管理人员,服务员用例图
答疑费用报销系统的用例图
为你推荐
lv豆腐包盒子包路易威登2020新款男包老花s
发际线高又怎样盘点娱乐圈靠发型照样美貌的高发际线女星
汽车故障灯【高清图解】,码住!
东宫小枫
散景祝贺你谢谢你的签名照片
拉丁舞表演服女成年专业比赛服拉丁裙服装套装三步踩舞蹈服连衣裙
现货供应 昆山华新 对羟基苯甲酸甲酯 化妆品防腐剂 尼泊金甲酯
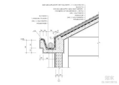
4套坡屋面建筑节点详图设计施工图下载