图知网
搜索
首页
热门推荐
图片分类
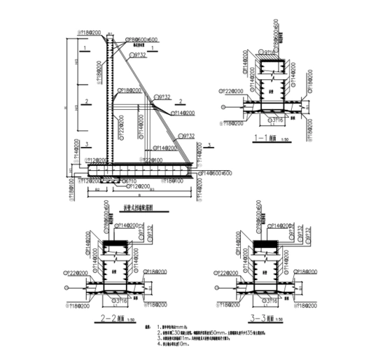
[分享]扶壁式挡土墙配筋图纸资料下载
下载原图
相关图片
这种扶壁式挡墙怎么布置钢筋
钢筋混凝土扶壁式挡土墙由组成
[分享]钢筋扶壁式挡土墙图集资料下载
挡土墙结构配筋图
扶壁式挡土墙的计算原理与设计实例
扶壁式挡土墙设计图(4~12米)
为你推荐
邵峰(演员)
串珠教程五角星82可以当小吊坠
桐字笔顺 桐字笔划 桐字笔画:桐组词(2个字)
《简爱》经典语录
94cm ,荧光红色,1卷 of 500labels
金木头像 喜欢的请点个赞 #东京食尸鬼# #东京喰种# #金木研
能看出来吗,宝宝才刚刚三岁,鼻腔里长的这是啥呀?
双喜软经典