图知网
搜索
首页
热门推荐
图片分类
九成新5个大电瓶,两个大灯箱,炸货铺卖凉菜卤菜的福音
下载原图
相关图片
熟食卤味车凉菜车奶茶冷饮车
9层新小吃凉菜卤菜车,长3.5米宽1.
现在做卤菜到底赚钱不赚钱?
专门做熟食,卤菜,卤味,凉菜的大三轮餐车,整车下来不到10,000块钱!
出售卤菜三轮车
凉皮车凉菜凉面早餐车手推外卖车卤菜摊位车冰粉车小吃车推车移动
为你推荐
谁看不迷糊唐家湾万科滨海半岛独栋别墅685平使用1200平
钢琴谱:最美的时光
tnt时代少年团手写签名来啦
[1]↓↓↓ ps:因为糙米的营养价值和gi值都优于精米,挑选大米时,优先
装得快 (rbd)软磁片a4白板磁性片磁铁强力贴磁贴 a4白色软磁片1张
宝玑366防霉透明玻璃胶
暴漫低头认错低头认错gif动图_动态图_表情包下载_soogif
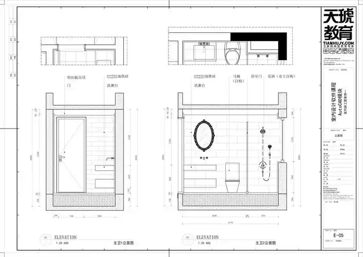
完成卫生间立面图