图知网
搜索
首页
热门推荐
图片分类
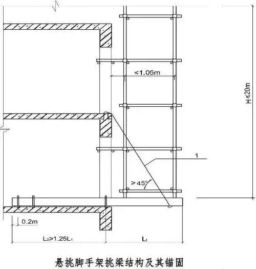
最新工字钢悬挑脚手架做法和规范收藏必备
下载原图
相关图片
最新工字钢悬挑脚手架做法和规范
㎜(如下图)结构阳角处悬挑工字钢交汇,无法保证伸入端长度:悬挑端长度
最新工字钢悬挑脚手架做法和规范收藏必备
建筑工地悬挑脚手架工字钢改进一下能节省一半大家看看合理吗
悬挑式脚手架安全管理要点
悬挑式脚手架施工标准
为你推荐
一眼迷倒何老大,李连杰为她分手妻女,"土妞"利智演绎逆袭人生!
美食 如糖
王一博听到并立于雪山之巅笑了王一博和肖战的cp粉也炸锅了
十二星座 古风系列公主 q版卡通画 如果十二星座公主穿越到古代 汉
抢走端午节后韩国又要抢活字印刷术你怎么看
半胛纹身图案半胛披肩龙佛头佛像莲花纹身图案
许家印7亿豪宅,被抵押
p站精选让妹妹早上叫你起床可好约会大作战五河琴里高清壁纸特辑