图知网
搜索
首页
热门推荐
图片分类
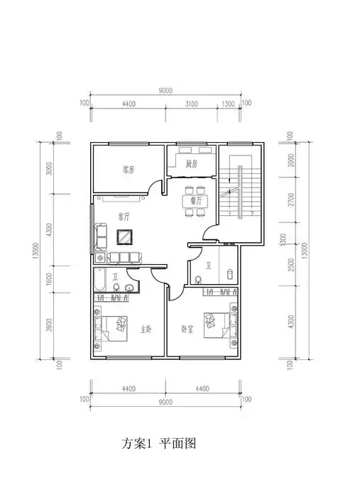
13x9米三层新中式别墅,一样的农村,不一样的生活体验
下载原图
相关图片
自建房户型图设计9米宽十三米长,南北两面取光!第25563194号稿件
9x13米三代同堂的实用型别墅,堂屋露台储藏室设计超细腻(全图 预算
913米的四层乡村别墅设计图大堂屋设计办喜事摆酒特方便
占地9x9三层带露台自建别墅设计全套施工图
3款9x9米三层农村别墅设计施工图外观图农村房屋设计图经济实用
农村盖房面宽十三米进深九米怎么设计好?
为你推荐
《生日歌,钢琴谱》许婉(伴奏编配)(五线谱 钢琴曲 指法)-弹吧|蛐蛐
百褶裙子-设计案例_彩虹设计网
单层纱裙罩裙外搭一层网纱裙半身裙女夏高腰透明裙子透视长裙外穿
11x15米三层自建房别墅设计图纸
爱怎么了吉他谱陈村长g调指法版弹唱吉他谱
自己拍的满月壁纸,自己手工的长焦镜头.镜头统一使用 自己手工 - 抖音
幼儿园乌鸦喝水ppt模板
入门级 色盲或色弱看到的是鹿, 而正常者看到的是牛.