图知网
搜索
首页
热门推荐
图片分类
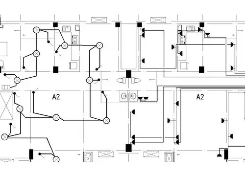
两栋生产厂房强电施工图(2019)
下载原图
相关图片
电工实操考核中,最经典的7张电路图(高清收藏版)
某住宅楼电气图纸
[湖北]金奥华庭住宅楼2016年电气低压配电系统,防雷系统等施工图
丽景紫园b户型现代风格效果图-施工图设计
[资料]某别墅电气施工图
[分享]别墅三层电气施工图资料下载
为你推荐
亲爱的热爱的王浩最后和谁在一起了
情侣头像一对两张污污
周杰伦超清最帅的头像图片
集体暗示:公众谣言的心理分析
侗族鼓楼,作为一种侗族文化|侗族鼓楼|黔东南|侗族_新浪新闻
筋皮子
格蕾丝·凯莉:越完美,越讨厌?
初尝听装大绿猫,口感确实醇厚.-点评熊猫(听50支)-九联汇