图知网
搜索
首页
热门推荐
图片分类
政和人房屋安全隐患排查你知道危房如何鉴定吗
下载原图
相关图片
分享钢梁拼接焊接节点构造详图资料下载
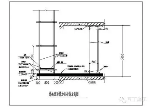
19.工字钢与工字钢连接示意图
分享工字钢拼接资料下载
河南凌耀新型建材有限公司10条关于新型悬挑工字钢施工规范和做法
4.焊接柱对接焊缝;3.安装次梁;2.安装主梁;1.安装柱;二.
建筑工地悬挑脚手架工字钢,改进一下能节省一半,大家看看合理吗?
为你推荐
硬汉男人嘎子哥谢孟伟宽容心态直面恶意敢于自嘲
1月19日是什么星座,12月23日是什么星座的
楼梯装修效果图室内楼梯装修大全
全球最奇葩的20个国旗排行榜利比亚的无力吐槽
永泰旅游景点(永泰旅游景点推荐)-第18张图片-科灵网
使幼儿园全体师生体验了火灾逃生的场景,了解逃生常识,熟悉疏散路线
卢恩符文占卜
全球科技创新ppt模板