图知网
搜索
首页
热门推荐
图片分类
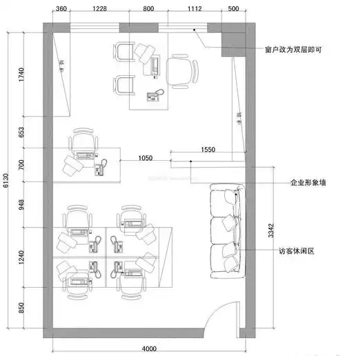
8款小办公室布局图办公室平面图样板案例
下载原图
相关图片
70多平方多小办公室,帮忙看下
4号线莲花北站步行五分钟,4/9号线上梅林站步行八分钟#办公室 #写字
8款小办公室布局图办公室平面图样板案例
大宁多媒体谷【办公户型】:207室【服务面积】:70平米【参考价格】
最新小办公室布局图欣赏
办公室布局设计
为你推荐
男生最帅寸头短发造型大全 复古帅气男生短发造型
解析:酒窝和梨涡有何区别
苏小明,离婚后入外籍嫁法国丈夫,姻缘报应都已应验?
周润发的9部好莱坞电影吴宇森两度助阵还有一部合作了周星驰
背着书包去上学的小女孩简笔画图片
首次发斗罗大陆终极斗罗
天珠吊坠挡灾解除厄运
3d硬金黄金老虎十二生肖金虎项链男士霸气黄金首饰女足金饰品坠子 约