图知网
搜索
首页
热门推荐
图片分类
篮球头像篮球头像合集高画质高分辨率
下载原图
相关图片
q版篮球风头像.就像小孩子一样,围着篮球,一点点去热爱,看看 - 抖音
头像舍nba球星头像篮球男孩必备
打篮球卡通人物插画图-打篮球的人物怎么画
篮球明星科比霸气头像图片 科比头像图片帅气高清大全_人物头像_美头
篮球卡通人物头像6号 卡通头像图片大全 -【爱个性】
矢量篮球男孩素材
为你推荐
nba2k20手机版手打集锦布鲁克林篮网
乾隆哥釉青花罐怎么鉴定和快速出手?_瓷器
怎么去 桂龙公园 ?
blackpink82
足浴按摩床一体动头疗足疗床洗头洗脚采耳两用多功能沙发床
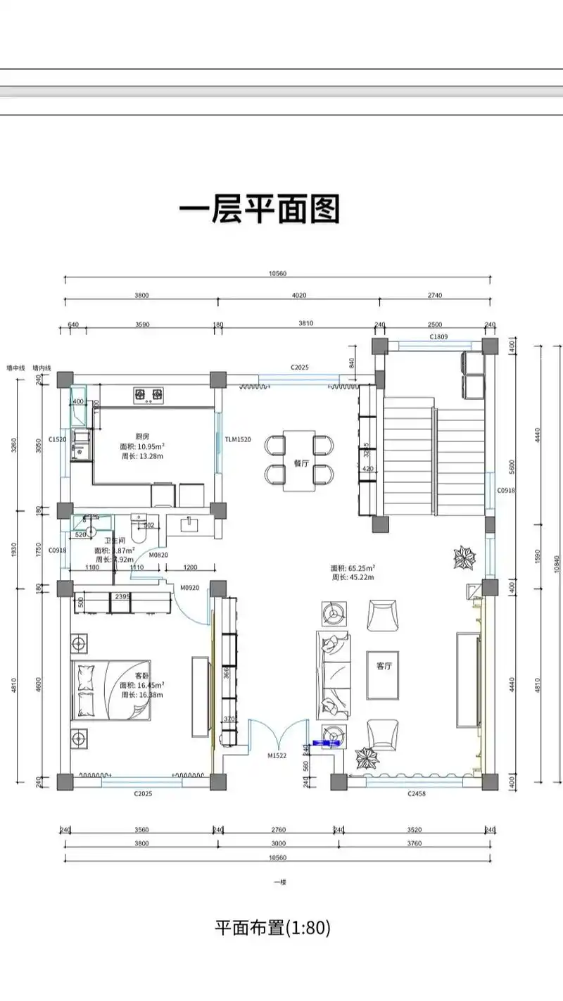
农村自建别墅五层平面设计图,需要图纸的粉丝这里保存就行##农 - 抖音
二胡把位的正确切换能使每一种定弦的调性特点保持相对的稳定.
譬如辽东死,斩头何所伤:一部国漫里的隋末历史(一)