图知网
搜索
首页
热门推荐
图片分类
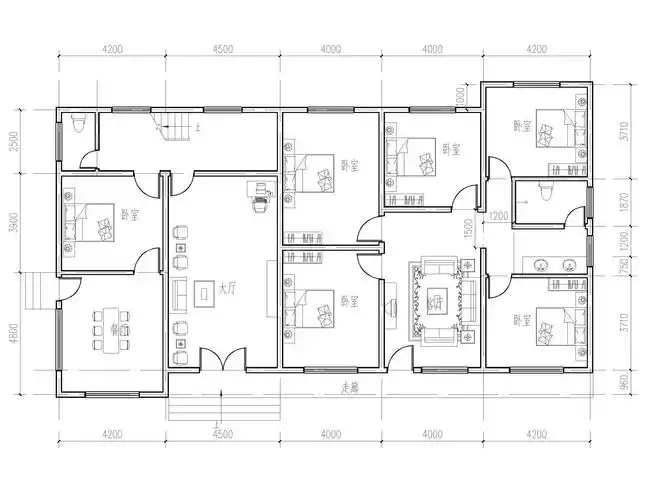
某地大型独栋高档别墅平面图纸
下载原图
相关图片
独栋度假别墅这样的设计才够大气
2020农村独栋别墅平面设计图大全
独栋别墅设计图图库欣赏
独栋别墅
独栋别墅设计图图片欣赏
独栋大别墅1000平院子468万带花园带车库
为你推荐
沙滩^_^sand beach_化象成境·李江峰作品集_李江峰作品展_李江峰在线
「头文字d」的女神 铃木杏 — 潇生客看世界
打油诗配随手拍
this 1972 vw beetle was one of over 150 cars at the eighth
撞色穿搭你会吗?颜色把控不好的话小心翻车哦
萌娃丸子妹表情包动图我独自走在郊外的小路上
齐峰feng qi的图片
巧克力奶茶曲奇饼干这些有可能都是新型毒品