图知网
搜索
首页
热门推荐
图片分类
2m左右) 设计不是可以说得出来的,如果设计是说出来的,那说书的就
下载原图
相关图片
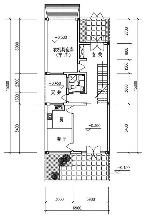
房屋设计宽7米长12米要求一楼有一大一小2个卧室一卫一厨客厅最好能大
农村自建房开间7米进深12米起两层怎么建好看
7x12米长条形房子设计图,非常简单的一栋二层小楼
7米面宽怎么建农村别墅?看看这套户型,挑空客厅,健身房全都有
农村建房7米宽两侧无窗,注意这两点,采光一样好
微信公众号:住宅公园,450套农村自建房图纸,施工队建房
为你推荐
《傲慢与偏见》里,她的3条择偶标准告诉你,有的女人注定嫁得好
古代婚礼图片
教你三分钟看八卦图晓阴阳乾坤
肖婷佳
美丽乡村——墙绘
卫生间吊顶扣板怎样拆下来
快看看在哪!
target="_blank" href="/item/固伦和孝公主">固伦和孝公主 /a>,乾隆