图知网
搜索
首页
热门推荐
图片分类
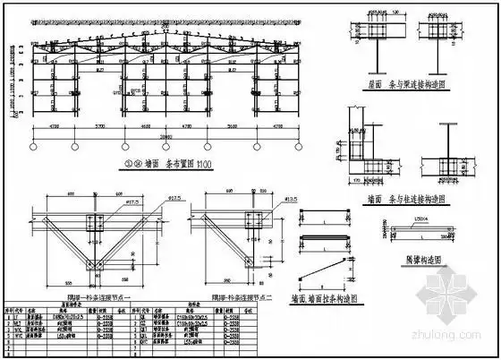
某60mx30m单层双坡轻型门式钢结构厂房全套结构图
下载原图
相关图片
[分享]78米钢结构厂房资料下载
钢结构厂房施工图.钢结构施工图,钢结构厂房#钢结构 #钢结构 - 抖音
70套钢结构厂房设计图纸自动发货
重庆某2×30米跨钢结构厂房图纸
06cg04:钢结构设计示例-单层工业厂房(参考图集)
某钢结构厂房节点构造详图
为你推荐
宝贝快起床楼顶等我晨练日天台健身
一只"潜江龙虾"的奇幻旅程_潜江_新闻中心_长江网_cjn.cn
我知道的写作方法有两种卡片笔记写作法和其他
卡巴列夫斯基24首前奏曲乐谱分享
王精品籽精5袋 整箱30袋商用炒菜增鲜回味 澳奇鑫鲜香王籽精200g*1袋
一朵小野花
小数乘除法竖式有答案