图知网
搜索
首页
热门推荐
图片分类
学生党头像 - 焦糖布丁98 - 抖音
下载原图
相关图片
艾特我 07商用二改 青春校园学生头像/课代表头像/老师头像
可爱女生头像|04不专心学习的星蝶公主头像 学生党头像 自截自取
学生党头像03
头像丨很有感觉的氛围感头像
女生头像 | 校服头像 | 高考加油 祝大家考的都会,蒙的都对
女学生头像也太好看了吧99谁拍谁好看系列!
为你推荐
2004年任长霞葬礼:万人空巷近20万人送行,死因让人心酸
杨幂#大变活粽![我最粽意你]真可爱端午安康
李公主寿司(王府井店)
文案/表情包_文案_表情包_朋友圈文案_素材_表情包
大年初一早晨,发现八戒拉粑粑不对劲,拉的是图一图二这种狗屎粑粑拉
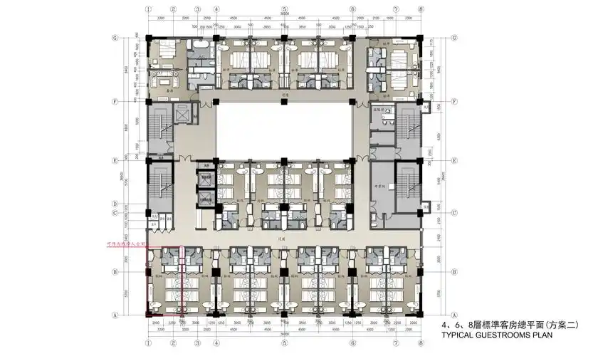
瑞金国际大酒店概念设计方案
古典拜日式瑜伽小人口令词体式要点
日本现代绘画大师,伊东深水绘画作品欣赏_西方