图知网
搜索
首页
热门推荐
图片分类
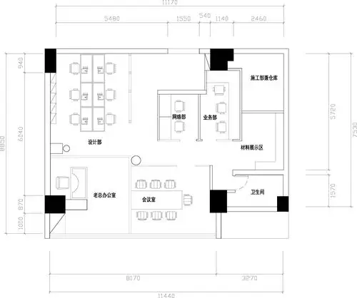
图 办公室平面图样板案例网站提醒和声明本站为用户提供存储空间服务
下载原图
相关图片
办公室平面布置.jpg
400平米办公室方案求新思路方向~面朝大海 求高手指点挑战 - 平面布局
论坛 69 方案 69 公装平面 69 一百多平方是室内设计办公室
办公室布局设计图分享
200平办公室布局平面图
咨询公司办公室装修设计平面图
为你推荐
男生长发发型设计吴亦凡帅气长发示范
打包米炮筒
中考必胜!三中全会,南开全对787878
防爆电子秤的接线方法
黑白樱木花道头像 - 抖音
67红莲哥斯拉是哥斯拉最强形态吗(哥斯拉的红莲形态)_贴刊网
funn1k赏金猎人dota2第一视角
玩黑白棋有什么技巧?