图知网
搜索
首页
热门推荐
图片分类
壹点报告丨专题点击超千万齐鲁壹点中秋国庆双节汇报道亮点频频
下载原图
相关图片
社区庆祝国庆节活动简报.doc
罕见!《人民日报》连发三篇报道热评总台国庆直播
频频被央媒点名这个国庆德清很亮眼
2020年10月2日出版的大众日报"月满神州 家国情浓"国庆节特别报道版面
【共祝愿】宁晋五中开展迎国庆系列活动
初中国庆节校园专题广播稿
为你推荐
今天是皮秒祛斑第一天……希望没有吓到你们
ipad壁纸#全屏壁纸 #壁纸 #ipad壁纸 #私藏壁纸 #治愈系风景
求佛上香图片
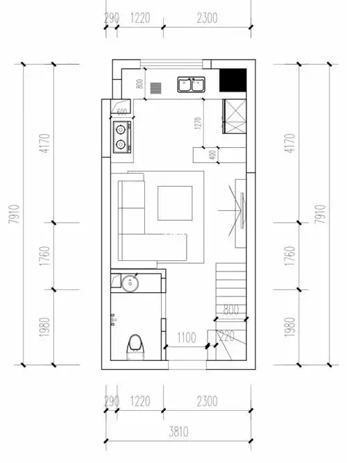
36平米loft公寓自装 最终的平面图出来啦!
北冰洋加桔味吸吸果冻,能吃又能喝北冰洋虽然比其他碳酸饮料买的贵
四川青神县融入成都一小时都市圈的关键——青神站
f和弦怎么按吉他最难的和弦排名
世界上最可爱的6种动物每种都想养一只特别是第4图的动物