图知网
搜索
首页
热门推荐
图片分类
最近很火的小丑图片大全小丑虽苦亦在演绎人生你有什么理由放弃呢
下载原图
相关图片
小丑壁纸|假如有一天小丑哭了, 你是否也认为他在笑.
iphone 壁纸 小丑,黑色背景
小丑joker
小丑joker
小丑
壁纸小丑
为你推荐
女孩儿头像背影的照片
你是不是正宗杭州人?一句话就能证明!
十二星座女生在古代后宫的角色
四大高原,四大盆地,三大平原,三大丘陵 a 2 b 4 c 第1页 下一页 瞎刎
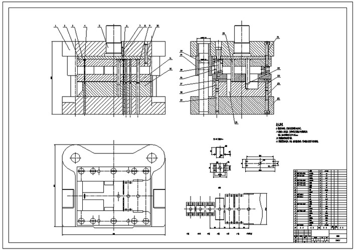
模具装配图
盘点暖暖霸道女王造型,摇滚很狂野,最后一款都在求复刻_套装
新款宝马x6售78.69万起 要买快下手! - 知乎
欧亚地图从地图上看,欧洲很像是欧亚大陆的一个半岛,因为欧洲三面环水