图知网
搜索
首页
热门推荐
图片分类
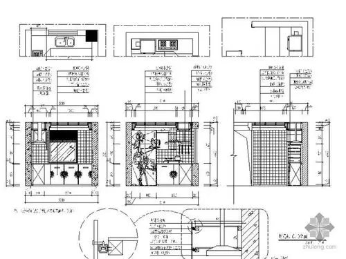
立即下载 跪求: 两栋3层半别墅cad平面图,立面
下载原图
相关图片
转角橱柜cad设计效果图赏析,内部结构尺寸规格一目了然!
真相了不是厨房不够大而是橱柜没装对附指南
符合自身需求的才是最合适的经世龙城业主分享超实用橱柜衣柜定制经验
分享厨房橱柜cad节点图资料下载
欧式美式整体厨房橱柜三维立体透视cad施工图含电器家电配件零件
定制橱柜衣柜怎样看懂设计图,如何审查柜子平面图立面图内部详图
为你推荐
原创五种方式可击沉航母,美国人直言只有两国可以,但中国不在其中
三款长发女儿古风发型,谁扎谁仙气,快给你女儿试试-时尚视频-搜狐视频
秋天的栾树叶
地面拼花家具装饰画过道壁纸简欧风格一楼走廊地面拼花装修效果图
1911年老照片: 清朝灭亡前的北京城, 原来大清国的京城是这样子
双套结
返回 铺镶钻石花朵项链项链 详情页 >
这么新鲜的拉宾斯车厘子新红鲜嫩酸甜可口