图知网
搜索
首页
热门推荐
图片分类
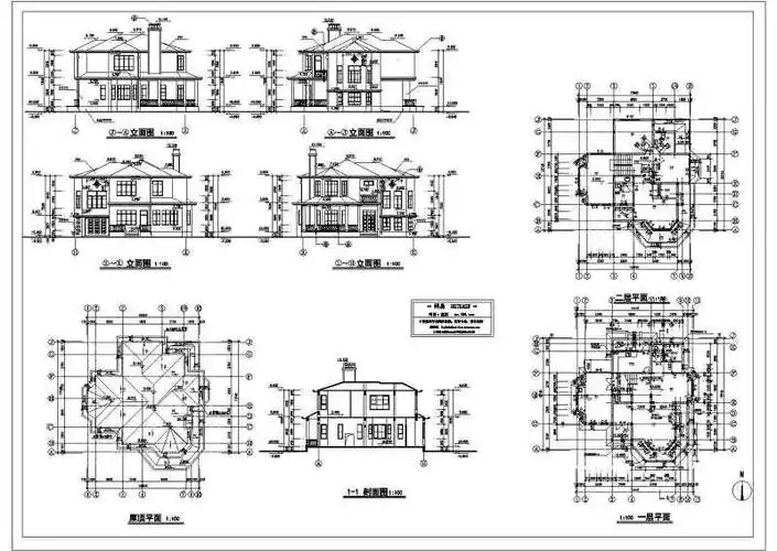
某多层宿舍楼建筑平立剖面图
下载原图
相关图片
某私人住宅楼平立剖面图(含说明)
某私人大型住宅楼平立剖面图标注详细
施工图 平面图 小别墅 立面图 剖面图 ,别墅平面图,别墅平面,小别墅
某县中心华丽小别墅建筑平剖面图
某别墅建筑平剖面图
2900平米6层砖混结构住宅楼平立剖面设计cad图纸(含架空层)
为你推荐
发型-花瓣网|陪你做生活的设计师 | 关注搭配 关注@mz教你完美搭配
面包海报|平面|海报|皮卡丘的小尾巴 - 原创作品 - 站酷 (zcool)
将所有的彩色圆形折纸都折成这样
魇梦夜市的鬼灭之刃插画图片
1 川东北及邻区构造旋回及构造层划分表米仓山前的滑脱层则位于震旦系
钢琴谱:栀子花开
约起一起去拉萨曲米路湿地公园看藏戏
十万火急!寻找一交通事故死者家属,望扩散!