图知网
搜索
首页
热门推荐
图片分类
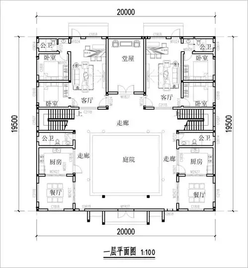
三款农村自建小四合院图,咱老百姓该住的房子,这也太美了
下载原图
相关图片
前门四合院出售,10月2号可以参观本房
农村自建新中式四合院,这样建别有一番韵味,有效果图和户型图
中国会馆 _ 其他户型 _ 中国会馆四合院c一层平
农村四合院一层户型图
乡村一层中式四合院设计图纸带庭院设计
乡村建的四合院一层设计,百万豪宅的既视感,开启一年好兆头
为你推荐
治愈系猫猫|超可爱的动漫头像! 这么可爱的头像,我不允许你没有!
男士头发两边刻剪图案(男士简单花纹发型图片大全)-天晟网
大图首页 psd素材 广告海报 > 素材信息 甜蜜520主题宣传单
小鬼当家4两个笨贼再次光顾小凯文早已等候多时
黑白女头像高冷 黑白孤傲高冷御姐头像 - 女生头像 - 潮人个性网
别克gl8全面进化:豪华内饰与卓越动力并存_车家号_发现车生活_汽车之
司南星星在唱歌吉他谱c调吉他弹唱谱
芝士沙拉酱烤南瓜彩屏无水箱全自动进水蒸烤箱