图知网
搜索
首页
热门推荐
图片分类
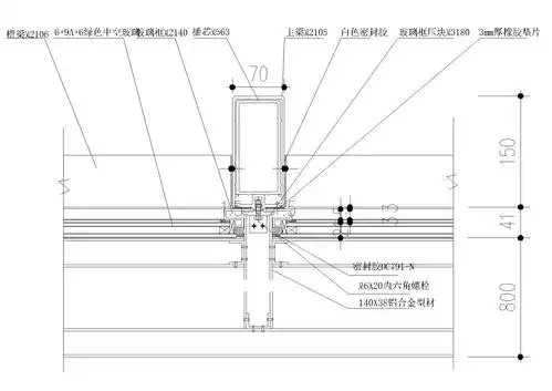
新手发帖[隐框玻璃幕墙节点jpg图]
下载原图
相关图片
某隐框幕墙节点图(四)
隐框玻璃幕墙,幕墙标准五金件节点详图
隐框玻璃幕墙,幕墙标准五金件节点详图
隐框玻璃幕墙节点详图
江苏世博玻璃幕墙节点图汇总
隐框玻璃幕墙节点图
为你推荐
背景 壁纸 690_1533 竖版 竖屏 手机
北欧简约家居背景素材
中国特种兵凭啥震惊世界飞檐走壁玩炸药魔鬼训练微不足道
nba名人堂盛宴,科比的老友保罗入选,瓦妮莎·布莱恩特的感人致敬
其它 川青的诱惑 写美篇色达喇荣五明佛学院,海拔4000米,距色达县城20
首只来自宇宙的怪兽基多拉,出演的电影也是非常多,都是和哥斯拉演
sans
大波椰子油泰国sangdad纯天然初榨冷榨卸妆护发护肤抗过敏100ml