图知网
搜索
首页
热门推荐
图片分类
丁钰琼 l丁钰琼的秒拍视频 9599 8146 17443 5月28日 21:0
下载原图
相关图片
丁钰琼张子凡这一对
抖音火起的张子凡求婚丁钰琼 - 简书
张子凡丁钰琼结婚
吴京也被压在热搜榜第二!网红张子凡丁钰琼结婚,他们到底是谁?
网红丁钰琼张子凡结婚上热搜,场面堪比明星,但路人却喊:好假!
张子凡丁钰琼结婚:是嫁给爱情的模样
为你推荐
鹿晗今晚高清造型照帅气大放送低调内敛不失成熟质感
孙艺珍机场街拍,结束巴黎行程返回韩国,条纹套衫搭配短裤与运动鞋
看我七十二变 蔡依林 歌谱 简谱
观察者网一周军评:搞"源头打击" 台军要学朝鲜了?_导弹
摇滚狂牛头像
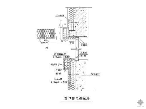
[图块/节点]节能型外墙外保温墙体节点详图
黑龙江新闻网>龙江新闻>覃大清,哈电电机副总工程师.
铁皮中华烟盒