图知网
搜索
首页
热门推荐
图片分类
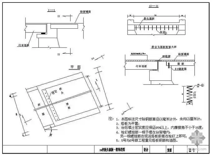
桥梁施工流程doc
下载原图
相关图片
桥梁施工工艺流程图
桥梁施工工艺流程图
查看详情>> 立即下载 系杆拱桥桥头搭板(无枕梁)节点详图设计
24张桥梁工程流程图,史上最完整!_施工
双肚里桥台搭板施工
鹏坝通道工程(坝光段)施工监理日报 2020.12.
为你推荐
华晨宇,你不许哭!你的眼泪很值钱
吗,怎么又奶又帅的,还有马哥你在外面又有别的狗了吗0606#马嘉祺
情绪的极端释放,都让这个角色富有极强的戏剧张力,而演员季肖冰拿捏的
q版动漫可爱萌宅温馨而美好
女孩背影礼服婚纱插画~可当头像!
ooyu_coo
大韩说电影-漫威系列之蚁人1
广昌县新农村建设示范村溪畔彭田近年获各种殊荣