图知网
搜索
首页
热门推荐
图片分类
墙身详图
下载原图
相关图片
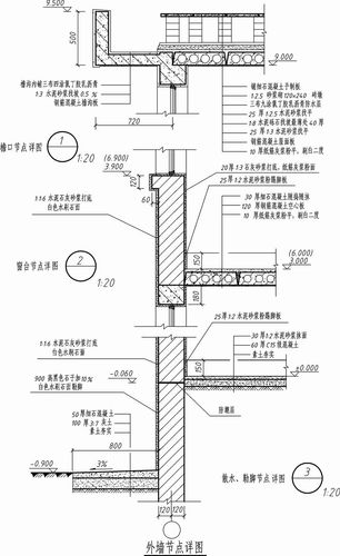
外墙墙身详图
2022通用节点墙身篇01|你还在为不懂画各种饰面是施工节点 - 抖音
墙身大样设计
外墙节点详图示例
室内装饰工程通用节点-墙面节点详图
建筑识图详图介绍1墙身节点详图
为你推荐
求九只尾兽小时候的彩图
精致暗黑小图手稿
改编了歌曲,让我们老歌新听,《跟着感觉走》《绿光》《恼人的秋风》
弹丸论破情头 赤松枫/天海兰太郎
热门 高端大牌‼️尾货清仓【捡漏价】💰1680床尾凳 - 抖音
传统相声都是市井生活,没有高雅?又被骗啦!
医生说是湿疹,可是涂了湿疹膏也没有用
cf手游挑战巨人城4个通关技巧攻略