图知网
搜索
首页
热门推荐
图片分类
dk启蒙地图书——世界地图
下载原图
相关图片
这张400多年前的世界地图,自带"解说词,插图"
data-id="grwr3c9uge">《好孩子智力拼图:世界政区》是2006年西安地图
桌面速查世界地图
世界地图册
2022年卡塔尔世界杯32强国家分布图_塞尔维亚_决赛_丹麦
横竖看世界有何大不同专访竖版世界地图编制者郝晓光
为你推荐
小绿绣球
林昕宜:清纯无敌初恋脸,《你好对方辩友》花式强怼对手
乐事薯片70g零食袋装批发休闲食品薯片乐事零食大礼包 休闲 学生
头像
由一位家长陪同 图 / 儿童乐园东门照片,核桃 地 址:福田区儿童乐园
值得信赖的品质 #自动麻将机推荐 #价格实惠质量好 #欢迎 - 抖音
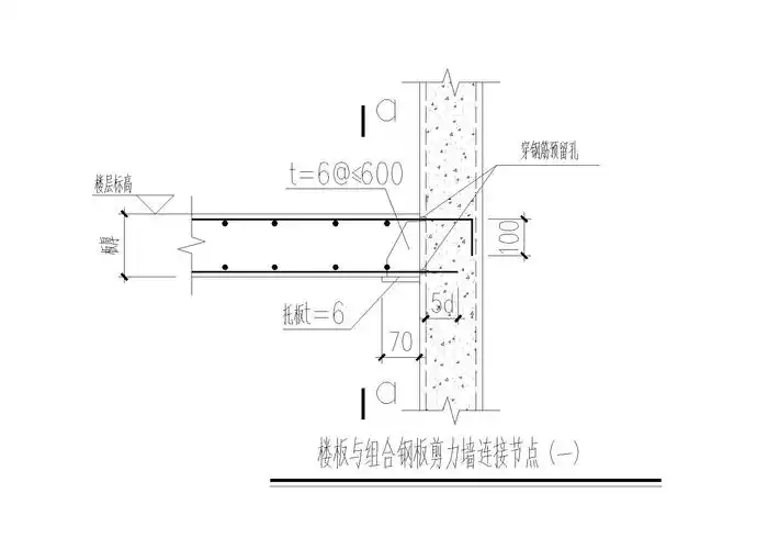
楼板与组合钢板剪力墙连接节点(一)
谢怜插画图片壁纸