图知网
搜索
首页
热门推荐
图片分类
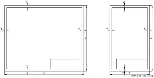
标准图框模板-a1a2
下载原图
相关图片
机械工程制图基本知识与技能训练很详细ppt
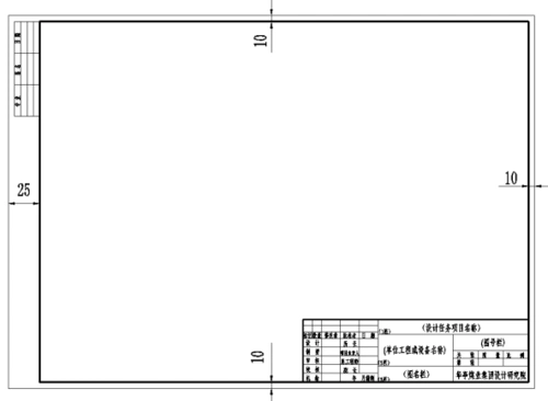
图框基本格式(1) 2,1栏填写设计任务项目名称;2栏填写单位工程或设备
包邮a1a2a3a4绘图纸无框工程制图图纸绘图
电气工程制图的一般规则概述
a1a2a3a4带框制图纸建筑机械园林设计土木工程绘图纸
a3绘图纸有框a2图纸工程制图a1有带框绘画机械制图纸建筑
为你推荐
蔡徐坤 男爱豆头像 by顺毛小坤
怎样简笔画小花园
可爱双马尾女头
卡西欧手表说明书
解放军结束军演,一国支持台海动武,一国反对,美派兵护台?
摩登复古时装秀
在哈萨克语中"我喜欢你"是"men sene jase ko
标签关键词:大象简笔画