图知网
搜索
首页
热门推荐
图片分类
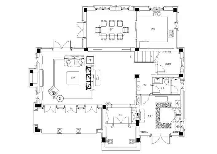
施工图 项目位置:北京 设计风格:现代风格 图纸格式:jpg,cad2000,pdf
下载原图
相关图片
[分享]住宅建筑图纸cad资料下载
cad室内平面图绘制教程,只要五步便能完成
分享湖南cad图纸资料下载
图 实景拍摄图纸内容包含:全套cad施工图(目录,材料表,一层二层平面图
【万科】1000套万科住宅户型cad设计图纸丨多层 小高层 花园洋房 公寓
结构类型:平层 图纸深度:施工图 设计风格:现代风格 图纸格式:jpg,cad
为你推荐
[转载]军旅女歌星精美图集 wbr>军装英姿风采大检阅
【10图】新上|一线豪宅|诚意出售,汤臣一品-上海58同城
舞台背景动态图
深扒中国女星戛纳红毯出丑的黑历史
动漫头像逗比沙雕
这身黑白搭配可以说是非常chic的了,黑色睡衣风上衣搭配白色阔腿裤
肖战#
女童内衣小背心青春期发育期小学生7-12岁内穿女孩少女文胸中童夏