图知网
搜索
首页
热门推荐
图片分类
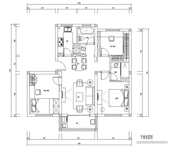
分享cad室内家居平面施工图资料下载
下载原图
相关图片
分享户型cad室内制图资料下载
下载-[江苏]常熟李闸小区三室一厅一厨一卫室内施工图设计(附实景图)
分享四室两厅室内施工图cad资料下载
[分享]简约住宅室内平面布置图资料下载
[湖北]欧式新古典4室2厅样板房室内设计cad施工图(含效果图)
泉州室内设计培训师教你室内装修用cad画结构图的方法
为你推荐
杨洋戴眼镜绝绝子kswl
动漫唯美背影头像超好看的高清漫画头像女生背面图片
七仙女
头像丨短发头像女生高冷背景 姐不是不写心情,而是没心情.
0基础学画动漫人物 , 立恒教育动漫培训_课程_绘画_技巧
柳絮
作为拳击手,他们有对手吗?#动漫
送电线路杆塔基础施工中质量问题浅析及控制措施