图知网
搜索
首页
热门推荐
图片分类
檐口天沟大样图屋脊7pdf1页
下载原图
相关图片
挑檐檐沟构造
屋面檐沟防水计算
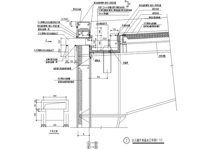
【檐口天沟大样图】钢结构女儿墙天沟溢水口详图
某檐沟节点构造详图一
【檐口天沟大样图】坡屋面檐沟详图
[分享]檐口天沟节点详图资料免费下载
为你推荐
不仅很多男星享受过热巴的公主抱,有一位男粉丝也曾体验过被热巴公主
虾仁蒸蛋
孙俪大s吴佩慈 明星辣妈逆龄肌保养法
澳门建筑大三巴牌坊
你读过最虐心的话是什么?网友评论句句伤感,让人泪奔!
【毛囊检测】专业检测头皮健康状态 脱发级别 毛囊坏死程度 毛
汽车钣金拆装工时标准 汽车喷漆油漆工时表【图】
驼铃电影《戴手铐的旅客》插曲简谱-许岚岚演唱-王立平/王立平词曲1