图知网
搜索
首页
热门推荐
图片分类
野生黄芪片
下载原图
相关图片
大黄芪片甘肃新货无硫大片泡茶泡水气血北茋茶中片500克加人参中片100
黄芪片
黄芪片 无硫北芪片
黄芪500g中药材 甘肃黄氏片泡水喝 搭特级野生当归党参枸杞气血茶
黄芪片甘肃黄芪茶整支黄芪切片搭配麦冬党参枸杞泡水免费打粉 黄芪片
家种黄芪片500克
为你推荐
晒出了19年前在海边度假的照片,而19年之前胡明轩的母亲刚好20岁,正值
人命币鲜花礼盒
超好看的情侣头像双人怦然心动 唯美情头真人高清图片最新_情侣头像
【香港公交】城巴6線:中環(交易廣場)->赤柱監獄
大码女装日系原宿韩国学院jk制服少女紫色格子百褶裙短裙半身裙女
17时03分,安倍晋三在奈良县立医科大学附属医院因抢救无效去世.
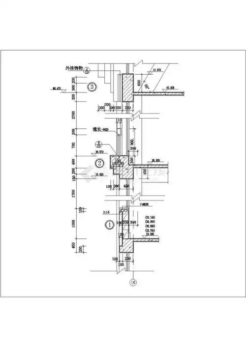
某墙身大样图cad完整构造施工图纸
超话#肖战宝诗龙全球品牌代言人#5月11号去的上海打卡肖战(世界名画2