图知网
搜索
首页
热门推荐
图片分类
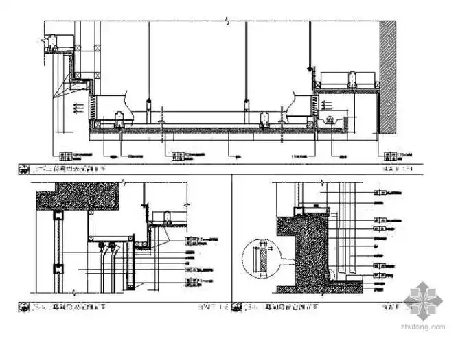
石膏板,钢板,铝板,铝格栅天花吊顶节点图
下载原图
相关图片
天花剖面图立即下载立即下载35款天花顶棚图cad图库大全(带剖面图线路
分享吊顶剖面图资料下载
客厅吊顶的cad剖面图.
[分享]cad干挂石材剖面图资料下载
分享洗手台剖面图cad资料下载
装配式装修革命来了!国内顶级样板间出炉!
为你推荐
月歌行 #月歌行徐璐 #月歌行张彬彬 #徐璐 #张彬彬 - 抖音
母亲节520情人节钞票花现金有钱花diy花束材料包生日礼花束半成品
球星最新动漫插画之篮球之神乔丹
15】【影视】《上流社会》曝盛骏花絮照 心机男原是萌男一枚韩流星闻
无刷直流潜水泵48v60v通用流量电瓶车抽水水泵电动车水泵
成为全球通用的表情包大腕,emoji在西方也很受欢迎.
差速器结构图公主王子请查收 🚗汽车转弯小秘密:差速器
7:00,准备就绪,设置参数,评估内瘘,娴熟穿刺,连接上机,透析治疗开始.