图知网
搜索
首页
热门推荐
图片分类
卡通猴子的动物插画图片素材
下载原图
相关图片
猴子特征眼睛双眼皮儿尖耳朵尾巴毛色金黄个个都美猴王此外龙口猴子
小猴子的脸还没有主人的手大,但是配合着小猴子独有的大耳朵,啊哈哈
带着大耳朵的猴子在热带动物园里吃东西.
松鼠猴体型纤细 毛柔软厚实尾巴短 长着一双大眼睛和大耳朵 十分的讨
大耳朵大眼睛,为什么叫叶猴
猴子
为你推荐
只要心情好,一切都会好|好心情|人生如梦_网易订阅
guanchi美国冠驰包包的优惠券大全—美国冠驰正品女包guanchi欧美时尚
纸质姓名牌新生入学桌牌一年级小学生桌牌座位牌卡片牌桌面幼儿园开学
四皇都有谁(四点带你了解海贼王)
置管保护套薄透气中心静脉护理化疗穿刺手臂袖套 s码(上臂围1723cm)
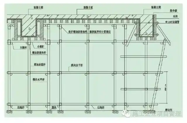
[分享]建筑工程模板支架搭设控制要点
论文标题(楷体_gb2312,二号,居中) (空一行) xxx(楷体,字号:小四号)
小木柜