图知网
搜索
首页
热门推荐
图片分类
外墙真石漆工程报价表
下载原图
相关图片
外墙真石漆报价表2
通用外墙真石漆报价表
通用外墙真石漆报价表
免费文档 所有分类 工程科技 材料科学 嘉宝莉弹性拉毛报价单1 备注:1
请进行举报或认领文档简介外墙保温涂饰工程综合单价分析报价表序号
真石漆施工报价表2012.4.16.doc
为你推荐
犯人量身高_万图壁纸网
今天就大结局了01丰兰息为了救人一夜白头,杨洋白发造型英气十足
译古 纸品三联单栏收款收据三联单收据48开三连收据收据无碳复写纸
新京报官网 新京报电子版在线阅读-新京报新闻部-《新
吉他谱 - catherine
闲置的家具(餐桌,衣柜,书桌,书柜,婴儿床等)
名画经典:唐五代山水画家李思训 赵幹【正版图书,放心购买】
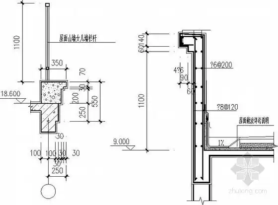
常用女儿墙大样节点详图-混凝土节点详图-筑龙结构设计论坛