图知网
搜索
首页
热门推荐
图片分类
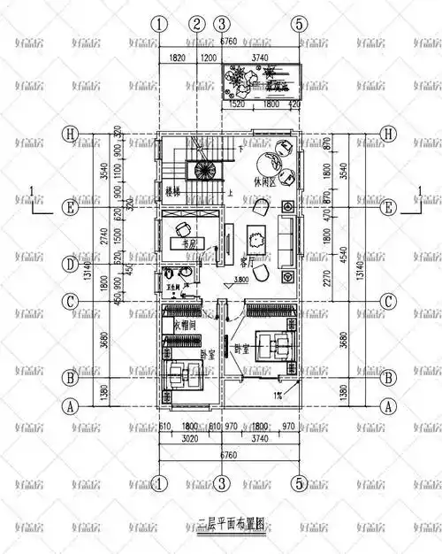
农村自建房面宽6米,进深10米,可以怎么设计比较合理?
下载原图
相关图片
6x10农村自建房图纸
6x10农村自建房图纸
6套10米面宽农村别墅实用又省钱第6套10多万你建吗
微信公众号:住宅公园,免费300套自建房别墅图纸下
原创农村盖房高度不能超10米这样建邻居都点赞第6套只需20万
三层农村别墅建得起的都是有身份的人7米x10米 3层农村自建房经典户型
为你推荐
杨洋 肖奈 - 堆糖,美图壁纸兴趣社区
秋游盱眙铁山寺国家森林公园
藏海寺,位于常熟虞山拂水岩之上,历史悠久,是常熟人的祈福圣地.
河南商丘轻钢别墅天沟钢结构檐沟雨水管外檐排水槽静电粉末喷涂工艺
nike耐克官方airmoreuptempo女运动鞋春季老爹鞋缓震休闲dv1137
比比鸟,图鉴017
thombrowne汤姆布朗tb男士棉质简约长袖套头卫衣
光遇d大调卡农琴谱是什么