图知网
搜索
首页
热门推荐
图片分类
一位加拿大女孩吸毒的恐怖过程看完之后你还有好奇心吗
下载原图
相关图片
悬疑小剧场芝麻女孩事件案件悬疑真实改编李沙雕轻漫计划动画十宗罪
他来此定居是为了追寻自己心爱的女孩 凯瑟琳,但是由于佣人失误贴错了
可能是今年最恶心电影,但真的好好看啊
女孩自拍照发到网上让网友p成十宗罪67有点吓人啊
11岁柔弱女孩大山里独自收芝麻,弟弟骨折后,她艰辛撑起家
恐怖黑眼女孩30年后再现英国被疑是外星人或鬼图
为你推荐
明星童年照!陈乔恩可爱杜江呆萌杨迪从小皮到大
大s自诩为美容大王为何颜值忽高忽低被吐槽审美不在线
女生清爽短直发发型,简约自然清新可爱
蛋蛋的忧伤
人物手绘线稿 超简单,适合初学者临摹
周杰伦《晴天》超简单单音吉他谱-弦木吉他c调六线吉他谱-虫虫吉他谱
哇!张艺凡这个身高都有180cm了吧
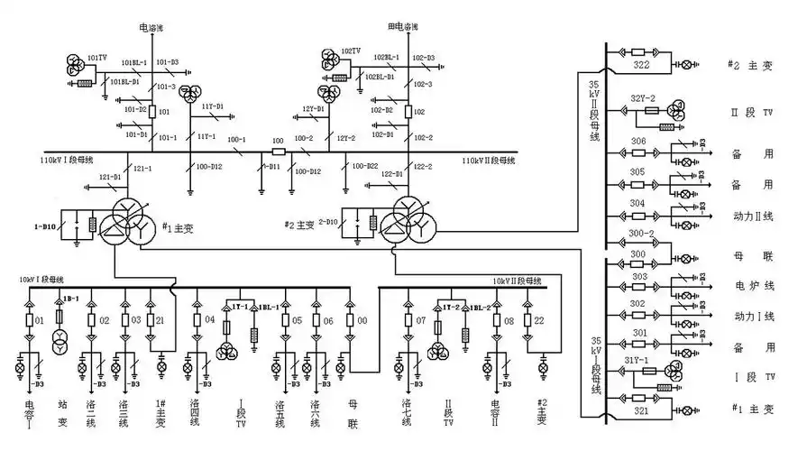
帮忙设计110/35/10kv降压变电所主接线图