图知网
搜索
首页
热门推荐
图片分类
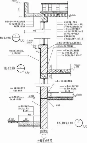
墙身剖面图大样图
下载原图
相关图片
外墙墙身构造设计作业参考图
外墙墙身详图
[分享]建筑外墙墙身节点图纸资料下载
z91 教室外墙详图_调整大小.jpg
第十四课绘制墙身大样图
高清幕墙墙身大样图.pdf
为你推荐
总结一下:如果当初教导他们忍术的人不是自来也,而是大蛇丸的话,可能
杰佣
六步画出小鸡简笔画彩色图片儿童画小黄鸡简这是一组小鸡简笔画的内容
锥齿轮计算方法
今天上山偶遇两株七叶一枝花,一年的土木香长势非常不错,看了就 - 抖
老式黑白电视天线一副
卡通画手绘墙图片
2020年微信姓氏黄头像图片,黄姓专属微信头像30张款式不同快来取