图知网
搜索
首页
热门推荐
图片分类
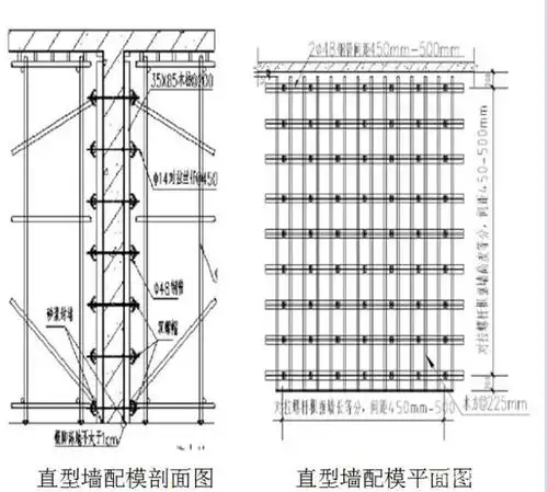
剪力墙模板图
下载原图
相关图片
剪力墙柱模板安装,这样操作,质量一定过关
[qc成果]提高伸缩缝处双剪力墙模板施工质量
框架剪力墙结构高层铝合金模板专项施工方案
山东32层剪力墙结构住宅模板工程施工方案
剪力墙别墅住宅模板工程技术交底
剪力墙外墙支模方法示意图
为你推荐
葡萄酒红色的头发图片
【焦作】2009年1月 出售多台半挂车 15万
2020年12月22日,整理十多年来集邮荣誉证书!
猫头鹰女与猫头鹰礼物睡衣小英雄动画故事书
【新式07迷彩服 林地迷彩 数码丛林迷彩 夏迷彩 作训服】价格,厂家
没看过前六部星球大战电影直接看《原力觉醒》能看懂吗? - 知乎
上海新款丰田海狮9座商务车报价图片
dio爷背影