图知网
搜索
首页
热门推荐
图片分类
tatan.#tatan表情包 #印尼小胖tatan #ta - 抖音
下载原图
相关图片
冲冲冲印尼小胖tatan冲冲tatan小胖印尼表情
郭艾伦晒出印尼表情包男孩tatan送给自己的手机壳,并写道:"十岁小孩
算了 还是不说了(印尼小胖 tatan 动图表情包)_tatan_动图_小胖_印尼
心灵终结印尼宽带云茹宽带
拔你wifiwifi表情
公司拿1万出头几千的同事,天天睡觉98-宽带山kds-宽带山社区-城市
为你推荐
平板支撑2分钟 累成狗
2006年,陕西咸阳,杨柏辉和何峰,被验明正身,即将押赴刑场前,留下的
欧美时尚女装搭配技巧及图片
红玫瑰花图片唯美壁纸(红玫瑰花图片唯美壁纸可爱)
直击元朝各位皇帝的画像 图12为忽必烈的衮冕装, 很少有人看过
新版英语三年级下册第一单元unit1welcome back toschool复习公开课
【65元五双】尖头细跟高跟鞋二手闲置高跟鞋女鞋旧浅口中跟女单
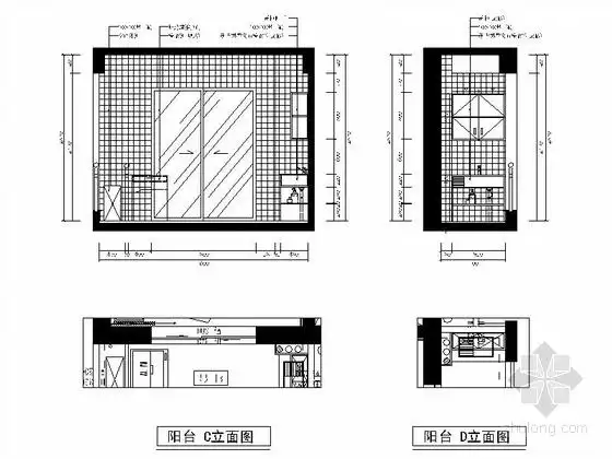
[福建]现代简约三居室样板房装修图(含效果)阳台立面图