图知网
搜索
首页
热门推荐
图片分类
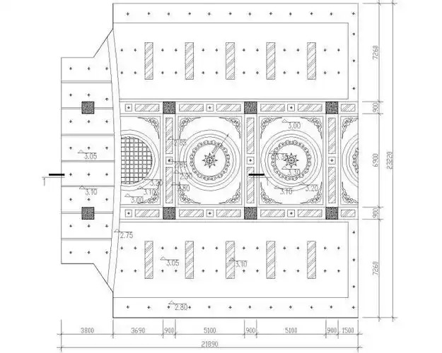
图;详图;大样图;剖面图 附:施工图jpg 像素:1080*748 包间吊顶图
下载原图
相关图片
室内装修cad图库大全资料下载-81款天花顶棚cad图库大全
整体性更强整体色调明亮天花吊顶增设金属线条简约中捎带奢华书房的设
其他图纸深度:施工图设计风格:现代风格图纸格式:cad2000图纸张数:10
顶棚装饰详图6 总缩略图立即下载170款天花吊顶装饰cad图库立即显刎
这份图纸里采用的灯具有吊顶,筒灯和吸顶灯.
170款天花吊顶装饰图库
为你推荐
肖战王一博卡通图片
所有的看似意外,其实都有迹可循.#易烊千玺 #少年感 #壁纸 - 抖音
有没有贼帅的寸头男生头像谢谢
便民措施|海淀医院开通现场预约挂号服务啦!
孙俪近照引热议!眼睛凸起五官肥大,虎背熊腰身材壮,才40就老了
老公老公抱抱
ins背景图天空云朵抱图吱一声
唐僧表情包合集史上最全版