图知网
搜索
首页
热门推荐
图片分类
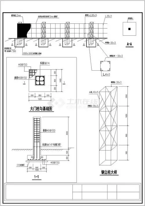
中交项目工地大门及围墙设计图纸
下载原图
相关图片
伸缩电动大门施工图纸
你可能喜欢 建筑材料标准化 大门建筑设计 违法建筑 节能建筑 工地
图纸 园林设计图 小品及配套设施 围墙大门设计图 大门施工图 上传
某中交项目工地大门及围墙设计cad全套建筑施工图纸(标注详细)
本图纸为某地区大门全套方案二设计cad施工图,内容包括大门平面图
某住宅小区大门建筑设计cad施工图
为你推荐
两个箭头左向右标志. 矢量. 黑色青色背景下的金色图标和边框.
基督教堂图片
唐七公子的三生三世系列,你最喜欢哪一部呢?
时尚个性logo元素设计矢量
倔强的谭先生手臂上的浪花花臂纹身图案
黑大帅跟潇洒哥头像图片点击鼠标右键下载
视频预告金钱帝国2猎狐行动太空骑士反贪风暴5与青春有关的日子
郎庄小学一年级珍爱生命,预防溺水