图知网
搜索
首页
热门推荐
图片分类
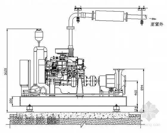
消防泵房安装图集
下载原图
相关图片
消防水箱稳压泵连接图
203d实景消防给水系统稳压泵
可在无火灾发生时,由稳压泵运行保证管网所需的消防压力,并能充分发挥
s205消防稳压泵国标图集是《17s205消防给水稳压设备选用与安装》图集
稳压泵后消防流量开关的安装位置应该装哪里
[分享]消防水泵安装资料下载
为你推荐
刘德华出道40周年抖音直播截图刘德华出生于1961年.
黑暗二元次少女头像 暗黑系风格冷冰冰的动漫少女,二元次动漫珍藏壁纸
640_360gif 动态图 动图
容貌焦虑哪家强?楚晚宁又老又丑,沈兰舟中人之姿,花城青面獠牙
农家自种生姜 新鲜姜 原生态 湖南生姜 一年一季 绿色健康
康纳2幽幽幽的蓝的小林家的龙女仆插画图片
麻辣烫海报宣传单设计,设计印刷素材关注我哦!#麻辣烫 #麻辣 - 抖音
座位:每排4个座位,1-2-1分部,选择右侧靠窗,可躺平.